通风空调施工程序:
熟悉审查图纸→施工机具和人员准备→配合土建预留预埋→风管及支吊架制作、放线、吊杆(支架)安装→风管与部件制作→风管与部件安装→风管漏风量测试→空调设备安装→安装粗、中效过滤器→风口安装→空调设备试运转→空调系统调试
熟悉审查图纸
施工之前要组织各专业技术人员图纸会审,找出图纸存在的问题及各专业交叉打架的部位,同时要组织作业班组熟悉施工图纸,并做好进场教育、技术交底和安全交底。
Ø 施工机具和人员准备
工程开工之前根据工程进度计划做好人员的调配和工程所需机具的进厂计划,以保证工程按期完成。
Ø 配合土建预留预埋
根据土建进度和施工图纸做好风管支架的预埋和风管穿墙、楼板洞的预留。
Ø 风管支吊架放线、制作及安装
依据施工图纸及现场实际情况,放出风管安装的中心线,确定出风管支吊架位置、形式及数量。
吊架制作时吊杆要平直,螺纹应完整、光洁。吊杆拼接可采用螺纹连接或焊接。螺纹连接任一端的连接螺纹均应长于吊杆直径,并有防松动措施,焊接拼接宜采用搭接,搭接长度不应少于吊杆直径的6倍,并应在两侧满焊。支吊架上螺孔应采用机械加工,不得用气割开孔。
支吊架型钢的切断和打孔。型钢的切断使用砂轮切割机切割,切割后用磨光机去除切割处毛刺,使用台钻钻孔。支架的焊缝必须饱满,保证具有足够的承载能力。
风管支架制作完毕后根据土建工程进度做好支架在砖墙和混凝土墙内的预埋工作,支吊架的预埋件或膨胀螺栓埋入部分不得刷油漆,并要除净油污。
风管支吊架制作完毕后安装前要依据设计及现行国家规范要求刷漆防腐。
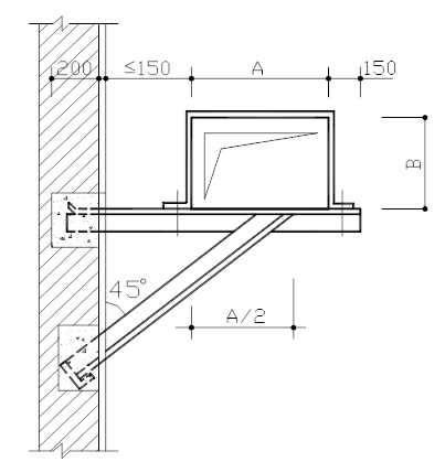
靠墙或靠柱安装的水平风管采用斜撑支架,不靠墙安装的水平风管采用托底吊架。支吊架型式如下图:

靠墙或靠柱安装的水平风管斜撑支架示意图

不靠墙安装的水平风管托底吊架
风管的末端、转弯处、与部件及设备连接处要设置防止摆动的固定点。矩型风管抱箍支架要紧贴风管,折角要平直,连接处要留有螺栓收紧的距离;圆形风管抱箍圆弧要均匀且与于风管外径相一致,抱箍要能箍紧风管。
风管安装时要及时进行支架的固定和调整,其位置应正确,受力应均匀。
支吊架不得设置在风口、阀门、检查门及自控机构处,吊杆不宜直接固定在法兰上。
风管支吊架的间距要符合下列规定:风管水平安装,直径或长边尺寸小于400mm时,间距不应大于4m;大于或等于400mm时,不应大于3m。风管垂直安装,间距不应大于4m,但每根立管的固定件不应小于2个。
Ø 风管与部件制作
本工程因工期较紧,空调风管制作采用无法兰连接风管,竖井风管采用法兰风管。
Ø 无法兰风管:
无法兰连接风管的接口及连接件,应符合规范要求。
薄钢板法兰矩形风管的接口及附件,其尺寸应准确,形状应规则,接口处应严密;薄钢板法兰的折边应平直,弯曲度不应大于5/1000;弹性插条或弹簧夹应与薄钢板法兰相匹配;角件与风管薄钢板法兰四角接口的固定应稳固、紧贴,端面应平整、相连处不应由缝隙大于2mm的连续穿透缝。
采用C、S形插条连接的矩形风管,其边长不应大于630mm;插条与风管加工插口的宽度应匹配一致,其允许偏差为2mm;连接应平整、严密,插条两端压倒长度不应小于20mm。
采用立咬口、包边咬口连接的矩形风管,其礼金的高度应大于或等于同规格风管的角钢法兰宽度。同一规格风管的立咬口、包边立咬口的高度应一致,折角应倾角、支线度允许偏差为5/1000;咬口连接铆钉的间距不应大于150mm,间隔应均匀;立咬口四角连接处的铆固,应紧密、无空洞。
Ø 角钢法兰风管:
风管与部件制作工艺顺序 划线下料→咬口→折方(编号) →合缝→铆接法兰(型钢加固)→清洗→环氧树脂胶密封→白纱布擦拭→管段漏光检查(碘钨灯) →质量检查→塑料膜密封管口→运至现场安装
风管和部件的板材选用优质镀锌钢板,加工前镀锌板用中性洗涤剂清洁,清水冲刷,然后用白布擦拭干净后使用,其用料规格见下表。
风管及其配件钢板厚度(mm)
风管直径或长边尺寸 | 矩形风管 | |
中压低压系统 | 高压系统 | |
80~320 | 0.5 | 0.75 |
340~630 | 0.6 | 0.75 |
670~1000 | 0.75 | 1.0 |
1120~1250 | 1.0 | 1.0 |
1320~2000 | 1.0 | 1.2 |
Ø 本工程新风系统为中低压系统,
加工镀锌钢板风管应避免损坏镀锌层,损坏处(如咬口、折边、铆接处等)应刷优质涂料两遍。
矩形风管的制作尺寸以外边长为准;圆形风管尺寸以外径为准。风管制作采用剪板机下料,折方机折方,咬口机咬口,局部采用手工。
风管的板材拼接采用单咬口;圆形风管的闭和缝采用单咬口,弯管的横向缝采用立咬口;矩形风管转角缝采用联合角咬口。上述咬口缝处涂密封胶密封。
风管不得有横向拼接缝,尽量减少纵向拼缝。矩形风管底边宽度等于或小于800mm时,其底边不得有纵向拼接缝。
当矩形风管边长大于或等于630mm和保温风管边长大于或等于 800mm,且其管段长度大于1200mm时,均应采取加固措施。
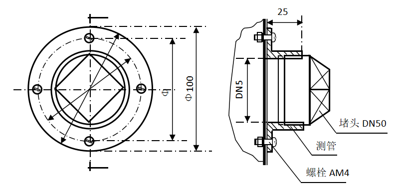
空调系统管径大于500 mm的风管设风量、风压测定孔,过滤器前后设测压孔,安装后将孔口封闭。测定孔的安装见下图:

法兰制作应该核对几何尺寸,找好平整度,对于相同尺寸的法兰,统一制作,统一钻孔,保证法兰具有互换性。
矩形风管法兰
风管长边尺寸(mm) | 法兰用料规格(角钢) |
≥630 | 25×3 |
670~1250 | 30×4 |
1320~2500 | 40×4 |
金属风管与法兰连接时,风管的翻边要平整,并紧贴法兰,风管翻边宽度不小于7mm;风管的咬口缝,翻边四角处,周边,铆钉缝部位均涂密封胶密封。
法兰螺钉孔和铆钉孔的间距不大于100mm。矩形法兰四角设螺栓孔。螺钉、螺母、垫片和铆钉采用镀锌材料,且不得使用空心铆钉。
送风管法兰铆钉缝处涂密封胶,涂密封胶前首先要清除风管表面的尘土和油污。
风管、静压箱和部件要保持清洁,制作完毕后用中性清洗液将内表面油膜和污物清除干净,干燥后经检查达到要求即用塑料薄膜及胶带封口,清洗后立即安装的可不封口。风管和部件的制作检查
风管与部件制作质量检查 风管制作保证项目的检查,风管的规格、尺寸必须符合设计要求;风管的咬口必须紧密、宽度均匀、无孔洞、半咬口和胀裂等缺陷。
基本项目的检查,风管外观质量应达到折角平直,圆弧均匀,两端面平行,无翘角,表面凹凸不大于5mm;风管与法兰连接牢固,翻边平整,宽度不小于7mm,紧贴法兰,螺孔具备互换性;风管加固可靠、整齐,间距均匀对称。
允许偏差项目,风管及法兰制作尺寸的允许偏差和检验方法见下表:
项 目 | 允许偏差 | 检验方法 | |
风管与配件外径(外边长 | ≤300mm | -1~0mm | 尺量检查 |
>300mm | -2~0mm | 尺量检查 | |
法兰内径或内边长尺寸 | +0~+2mm | 尺量检查 | |
法兰平面度 | 2mm | 塞尺检查 | |
矩形法兰对角线 | ≤3mm | 尺量检查 | |
法兰焊缝对接处的平整度 | 1mm | 塞尺检查 | |
风管制作要在干净,专门的预制车间内进行,预制车间地面应铺地板革;制作场地要随时保持清洁,制作时手套不许有油污,镀锌板、风管不允许在地面上拖行。
制作法兰和吊架底座,切割,焊接场地应和风管制作场地隔开。铁件刷油干燥后,才能进行装配安装。
成品风管需用塑料薄膜和胶带封住开口处,风管分系统码放在成品库,安装时运入现场后拆开封口,如发现风管内有灰尘,应再次清扫干净后安装。未安装完的风管,对于本段风管的开口处,应用镀锌板加封条封住,防止现场灰尘进入风管。
对于进入风管内的施工,必须有干净的工作服,工作手套,工作帽,最后出来时应顺原路线退出,并擦净风管内部的污迹。
风管与部件安装
风管安装前,先检查风管穿墙孔洞的尺寸,标高和支吊架的位置等是否符和要求,如出现预留洞偏差,应及时联系土建单位寻求解决。
风管及部件安装前,在施工现场将风管及部件两端密闭膜打开,再一次将风管内未及清理干净的灰尘擦拭干净。系统安装完毕或暂停安装时,必须随时将风管的开口封闭,防止灰尘进入。
风管安装前,必须经过预组装并检查合格后,方可按编号顺序进行安装就位。
风管与配件的可拆卸接口不允许安装在墙洞内,支吊架与风管之间设经防腐处理的垫木,木条厚度与保温材料厚度相等。
风管、静压箱、风口及设备安装穿过围护结构时,其接缝处应采取密封措施,做到清洁、严密。
法兰填料采用δ=5mm闭孔乳胶海绵,接头采用梯形或企口连接。 接头形式见下页图:

闭孔乳胶海绵橡胶板的在法兰角处的连接形式
经清洗干净包装密封的风管及其部件,安装前不得拆卸。安装时拆开端口封膜后,随即连接好接头;如安装中间停顿,应将端口重新封好。
消声器安装的方向应正确,不得损坏和受潮。消声器应单独设支架,其重量不得由风管承受。
防火阀安装前,检查其型号和位置是否符合设计要求、有无产品合格证,防火阀易熔片要迎气流方向安装,为防止易熔片脱落,易熔片在系统安装后再装,安装后做动作试验,另外防火阀安装时单独设支架。
所有风口、散流器、防火阀,在安装前均应检查其外观质量和灵活性、密封性,合格后方可安装就位。
风口安装时将其清扫干净,保证风口与风管连接的严密、牢固;风口的边框与建筑装饰面贴实,其接隙加密封垫料或填密封胶;安装完毕的风口外表面保证其平整不变形,调节灵活。
风管与通风机,空调器法兰连接处均设软接头,其接缝处做到严密和牢固,并且不允许软接头变径。
依据国家规范,风管、风口的安装允许偏差项目见下表:
允许偏差项目
项次 | 项目 | 允许偏差(mm) | 检验方法 | ||
1 | 风管 | 水平度 | 每米 | 3 | 拉线、液体连接器和尺量检查 |
总偏差 | 20 | ||||
2 | 垂直度 | 每米 | 2 | 吊线和尺量检查 | |
总偏差 | 20 | ||||
3 | 风口 | 水平度 | 5 | 拉线、液体连接器和尺量检查 | |
垂直度 | 2 | 吊线和尺量检查 | |||
安装过程中振动和噪音的预防 振动和噪音的预防是安装过程中一个重点,安装过程中风管的振动和噪音的预防主要从以下几个方面着手:
风机、空调机组基础按设计要求或施工规范要求减振。
风机、空调机组、风管相连接采用软管连接,风机吸入口处的软管安装要做到松紧适度,避免因软接过松减小进出风口面积,而引起噪声和振动。
风管制作、安装及与部件连接,连接严密,无漏风现象,以免产生漏风噪音。
为防止风管振动,在每个系统风管的转弯处、与空调设备和风口的连接处设固定支架。
Ø 风管的漏风量测试
风管安装完毕,需进行漏风量测试,依据规范规定,风管的漏风量检测采用漏光法定性检测和漏风量测试定量检测相结合的方式,对一般性空调来说漏光法适合于中、低压空调系统的严密性检验;漏风量测试适合于中压系统的抽检和高压系统的悉数检测。
Ø 风管的漏光法检测
漏光法检测是采用光线对小孔的强穿透力,对系统风管严密程度进行定性检测的方法。其试验方法是在一定长度的风管上,在黑暗的环境下,在风管内用一个电压不高于36V、功率在100W以上的带保护罩的灯泡,从风管的一端缓缓移向另一端,试验时若在风管外能观察到光线,则说明风管有漏风,并对风管的漏风处进修补。
系统风管的漏光法检测采用分段检测、汇总分析的方法,被测系统的风管不允许有多处条缝形的明显漏光,低压系统风管每10米接缝,漏光点不超过2处,100米接缝平均不大于16处;中压系统风管每10米接缝,漏光点不超过1处,100米接缝平均不大于8处为合格。
风管的漏光法检测如下页图所示:
风管的漏光法检测图 
Ø 风管的漏风量测试
风管的漏风量测试采用经检验合格的专用测量仪器,或采用符合现行国家标准《流量测量节流装置》规定的计量元件搭设的测量风管单位面积漏风量的试验装置。风管单位面积允许漏风量的检验标准见下表:
风管单位面积允许漏风量(m3/h.m2)
系统类别 工作压力(pa) | 低压系统 | 中压系统 |
100 | 2.11 | — |
200 | 3.31 | — |
300 | 4.30 | — |
400 | 5.19 | — |
500 | 6.00 | 2.00 |
600 | — | 2.25 |
800 | — | 2.71 |
风管漏风量测试步骤:
试验前的准备工作:将待测风管连接风口的支管取下,并将开口处用盲板密封。
试验方法:
利用试验风机向风管内鼓风,使风管内静压上升到700Pa后停止送风,如发现压力下降,则利用风机继续向管内进风并保持在700Pa此时风管内进风量即等于漏风量。该风量用在风机与风管之间设置的孔板与压差计来测量。试验装置见下页图:

试验风机:为变风量离心风机,风机最大风量为1600m3/h,最大风压2400Pa
连接管: φ100mm
孔板:当漏风量≥130 m3/h时,孔板常数C=0.697,孔径=0.0707m
当漏风量<130 m3/h时,孔板常数C=0.603,孔径=0.0316m
倾斜式微压计:测孔板压差 0~2000Pa
测孔管压差 0~2000Pa
试验步骤:
漏风声音试验:本试验在漏风量测量之前进行。试验时先将支管取下,用盲板和胶带密封开口处,将试验装置的软管连接到被测风管上。关闭进风挡板,启动风机。逐步打开进风挡板直到风管内静压值上升并保持在700pa为止。注意听风管所有接缝和孔洞处的漏风声音,将每个漏风点作出记号并进行修补。
漏风量测试:本试验在有漏风声音点密封之后进行。测试时,首先启动风机,然后逐步打开进风挡板,直到风管内静压值上升并保持在700pa时,读取孔板两侧的压差,按下述公式计算被测风管的漏风量和漏风率:
漏风量按下式进行计算
Q=3600AV
式中:v—通过孔板的风速,(m/s)
Q—漏风量,(m3/h)
A—孔板内孔面积(m2)
C—孔板常数
ΔP—空气通过孔板的压差, pa
ρ—空气密度(kg/m3)
漏风率按下式进行计算式中 ε—漏风率,%
Q额—被测风管系统的设计风量,m3/h
对于漏光检查或漏风量检查不合格的被测风管,要对漏光、漏风点涂密封胶密封,直至风管漏风量完全符合规范要求。
空调水管道安装
本工程管道系统主要包括冷却水系统、冷冻水系统、热水系统和冷凝水系统。
冷冻水系统和热水系统采用无缝钢管,冷却水采用无缝钢管,无缝钢管均采用焊接连接;冷凝水管采用UPVC管。
Ø 施工主要程序
总原则:根据现场条件配合土建施工。先预制后安装,先总干管后支管,先立管后水平管,同一作业层按先高处后低处的顺序施工。先系统试压后冲洗,最后进行防腐、保温及隐蔽验收。
主要程序:施工准备→材料进场及检验→管道预制→管道放线→支、吊架制安→管道安装→管道附件安装→管道试压、吹扫、冲洗→水冲洗、消毒→防腐→保温
主要施工方法及技术要求
Ø 施工准备
施工前认真熟悉图纸和相应的规范,进行图纸会审,并做好图纸会审记录,编制材料进场计划、作业指导书及焊接工艺卡,并对施工班组进行施工技术交底。
施工前认真核对平面图、系统图与单线图的尺寸、规格、材质是否相符,并根据介质参数确定管道级别,标于单线图上。
Ø 材料进场及检验
所用管材必须具有质量证明书、合格证等资料,阀门等管道附件本体上必须有完好无损的铭牌。
材料进入现场经自检合格后,及时填写材质报检单,向业主或监理工程师报检,经检查合格后,方可使用。
进场的材料堆放整齐,规格、型号、材质要分清,每一种材料必须挂牌,注明规格、名称、材质并建立台帐,做到账、物、卡相符,收发手续完整。堆放中要有防止管材变形的措施。
管道、管件、阀门等在搬运、安装过程中要轻拿轻放,禁止扔摔等方式搬运。
阀门的型号、规格符合图纸及设计要求,安装前从每批中抽查10%进行强度试验和严密性试验,在主干管上起截断作用的阀门逐个进行试验。同时阀门的操作机构必须开启灵活。
Ø 预留、预埋
预留、预埋工作要与土建进行图纸核对,配合土建进行预留预埋工作。
管道预制
为了提高施工效率,保证施工质量,在熟悉图纸及现场的基础上,根据工程进度计划的要求组织安排,在预制场地集中进行预制。
管道的预制按单线图施工,自由管段参照单线图并结合现场实际情况选择预制深度。封闭管段制作时要根据现场实际测量,预制完的管段及时封闭管口,并按不同的系统进行编号,分类排放整齐,以便于安装。
Ø 管道放线
管道放线由总管到干管再到支管放线定位。管道放线在各专业不交叉的条件下,依照原设计规定进行,并兼顾现场尺寸,同时留出保温、保冷及操作空间。
Ø 支、吊架制作安装
管道支、吊架根据标准图集及设计要求进行制作、安装。水平管道安装时,在转折及受力处易变形部位需加设支架。
制作支、吊架时,采用砂轮切割机切割型钢,并用磨光机将切口打磨光滑;用台钻钻孔,不得使用氧乙炔焰吹割孔;煨制要圆滑均匀。
管道安装时要及时调整支、吊架。支、吊架位置要准确,安装平整牢固,与管子接触紧密。
支、吊架制作安装要充分考虑保冷、保温、热位移等因素。
管道安装过程中使用临时支、吊架时,不得与正式支、吊架位置冲突,做好标记,并在管道安装完毕后予以拆除。
保冷管道与支架间要用经过防腐处理的木衬垫隔开,木垫厚度同保冷层厚度。
在支架上固定管道,采用U型管卡。制作固定管卡时,卡圈必须与管子外径(保冷、保温管道除外)紧密吻合、拧紧固定螺母后,使管子牢固不动。U 型管卡在管道安装中用圆钢制作,先按尺寸锯割下好料,然后夹在台虎钳上,用螺丝板套好丝扣,最后煨成U型。
几种常用的支架形式:
固定支架:

滑动支架:

吊架:
管道安装
a.无缝钢管安装:
钢管壁厚4mm~11mm,采用手工电弧焊焊接。
①壁厚等于或大于3mm的焊件的坡口形式采用“V”型;壁厚小于3mm,采用I型坡口,钢焊件的坡口示意图及尺寸如下:
名称 | 坡口形式 | 坡口尺寸 | MM |
| S | >2~3 | |
C | 0+1 | ||
| S | ≥3~9 | |
α | 65°±5 | ||
C | 1±1 | ||
P | 1±1 |
钢焊件坡口的尺寸(mm)
厚度T | 坡口形式 | 间隙C | 钝边P | 坡口角度α(o) |
1~3 | I型 坡口 | 0~1.5 | ─ | ─ |
3~6 | 0~2.5 | ─ | ─ | |
6~9 | V型 坡口 | 0~2 | 0~2 | 65~75 |
9~26 | 0~3 | 0~3 | 55~65 |
管道的坡口要求表面整齐、光洁,不合格的管口不得进行对口焊接。
管道对口时外壁必须平齐,用钢直尺紧靠一侧管道外表面,在距焊口200mm另一侧管道外表面处测量,管道与管件之间的对口,也要做到外壁平齐。
钢管对好口后进行点固焊,点固焊与第一层焊接厚度一致,但不超过管壁厚的70%,其焊缝根部必须焊透,点焊位置均匀对称。点焊长度和间距如下表:
钢管接口点焊长度和点数
管径DN(mm) | 点焊长度(mm) | 点焊点数(处) |
80~150 | 15~30 | 3 |
200~300 | 40~50 | 4 |
350~500 | 50~60 | 5 |
采用多层焊时,在焊下一层之前,将上一层的焊渣及金属飞溅物清理干净。各层引弧点和熄弧点均错开20mm。
焊缝均满焊,焊接后立刻将焊缝上的焊渣、氧化物清除。
焊缝外观检验:焊缝表面须完整,高度不低于母材表面并与母材圆滑过度,焊缝宽度超出坡口边缘2~3mm。
UPVC 管连接
根据图纸要求并结合实际情况,绘制加工草图。根据草图量好管道尺寸,进行断管。断口要平齐,用铣刀或刮刀除掉断口内外飞刺,外棱铣出15°角。粘接前应对承插口先插入试验,不得全部插入,一般为承口的3/4深度。度试插合格后,用棉布将承插口需粘接的部位的水分、灰尘擦试干净。如有油污需用丙酮除掉。用毛刷涂抹粘接剂,先涂抹承口后涂抹插口,随即用国垂直插入,插入粘接进将插口稍作转动,以利粘接剂分布均匀,约30~60min即可粘接牢固。粘牢后立即将溢出的粘接剂擦试干净。多口粘连时应注意预留口方向。
管道穿越结构外墙时,有防水要求的部位要加柔性防水套管,管道过楼层内部墙壁时加一般穿墙套管,套管规格要比管道大2个规格,保温工程穿越套管时不得中断。刚性套管应打油麻水泥添实。
阀门和其他附属配件安装:安装前按规范和设计要求进行试压,水管路阀门按照规范要求进行10%抽查,关键部位和起切断作用的阀门要100%的检查,气体管路阀门要逐一进行检查。在安装时按介质流向确定其安装方向;安装丝扣阀门时,保证螺纹完整无缺,并以铅油、麻丝缠绕。安全阀须在系统运行前及运行后分别调校,开启和回座压力须符合设计文件或设备产品技术章程的规定。安装位置便于操作,方向一致。
安装法兰阀、软接头、过滤器等法兰配件时,法兰垂直于管子中心线,法兰连接使用同一规格螺栓,安装方向一致;法兰间应用橡胶石棉垫片,不得使用斜垫片或双层垫片。为防止垫片同法兰黏合,根据介质要求可给垫片涂以干油等。
过滤器安装时要将清扫部位朝下,并要便于拆卸。
管路上的温度计、压力表等仪表取源部件的开孔和焊接在管道试压前进行。温度计、压力表安装要便于观测、便于操作及维修。
Ø 试压及冲洗
管道安装完毕应及时进行压力试验,水系统管道试验压力按照规范要求设计压力的1.5倍进行压力试验,压缩空气系统和气体管道系统试验压力为设计压力的1.15倍。
4.9环氧乙烷、空压管道系统安装工程
Ø 施工顺序:①施工准备→②设备就位→③清理管道→④支架制作加工→⑤压缩空气管道预制→⑥压缩空气管道连接→⑦附属装置安装→⑧试压吹扫→⑩调试验收
根据<工业金属管道工程施工规范>要求的间距制作支架,支架采用角铁制作,焊接、安装、防腐。
管道试压吹扫:管道安装完毕后,进行气压强度试验,试压时应缓慢增加至试验压力,在试验压力下以发泡剂检验不泄露为合格;吹扫流速不得小于20M/s,吹扫至管内无异物响动,出口无污物吹出为合格。
防腐
1.设备、管道的吊支架在刷底漆前,要清除表面的灰尘、污垢和锈斑,保持干燥,必要时采取机械除锈。除锈后,刷防锈漆和调和漆各两遍。
2.管道及设备的表面一定要清洁、干燥,保证防腐质量。
保温
1.在整个管道系统完成压力测试和清洗后,即可以进行保温工作。
2.所有的机房空调冷媒管均需做保温, 采用燃烧等级 B1 级的 20mm 厚的橡塑 海绵保温材料,冷凝水管保温采用 10mm 厚的橡塑海绵保温材料。
3.机房空调如果使用乙二醇管道,那么保温必须采用燃烧等级 B1 级的橡塑海 绵保温材料,保冷厚度为 50mm. 5.1.4 机房空调设备的试运转 设备经就位调整达到要求后。管道、电线配管完成即可进行试运转。
4.设备在试运转前,必须进行一次全面的检查,以保证试运转顺利、安全地进行, 检查的内容有:
5.检查各地脚螺栓的紧固情况,要求各紧固连接部位无松动;
6.检查管路内是否有异物,不得漏水、漏油;
7.设备内部不得有异物;
8.检查清洗和加油润滑情况,对于遗漏和不符合要求的部位立即补做;
电气控制主回路已检查过,供电正常;
试运转的步骤及方法
1. 各种设备的试运转步骤及方法参照设备说明书和《机械设备安装工程施工验收规范 (通用规定 )》进行。
2. 无基础固定的设备安装
3. 对静电地板 (或平整地面 )进行清扫,在静电地板 (或平整地面 )上,将设备放置, 调整防震垫 (如果有的话 ),使其全部受力;
4. 按照设备说明书要求接管、穿线,进行常规清洗、润滑和调试前的检查;
5. 试运转步骤及方法同上内容。
